Каркасные дома под ключ в Республике Крым

Рассчитать стоимость
Каркасный дом с зеленым газоном
каркасный дом в стиле барнхаус,солнечная погода ,зеленая трав
Строительство каркасных домов от компании
«Каркас-Азов»

Каркасные дома под ключ — это быстрый, надежный и экономичный способ построить современное жилье в Крыму. Компания «Каркас-Азов» выполняет строительство каркасных домов любой сложности: от дачных домов до капитальных коттеджей для постоянного проживания.
Мы проектируем и строим каркасные дома с учетом климата Республики Крым, особенностей грунта и индивидуальных пожеланий заказчика. Гарантируем качество работ, соблюдение сроков и прозрачную стоимость.

Почему выбирают каркасные дома


Каркасный дом — это современная технология строительства, которая сочетает в себе энергоэффективность, прочность и доступную цену.

Преимущества каркасных домов:

  • быстрые сроки строительства;

  • низкая стоимость по сравнению с кирпичными домами;

  • высокая тепло- и шумоизоляция;

  • возможность строительства в любое время года;

  • экономия на отоплении и эксплуатации;

  • гибкая планировка и индивидуальный дизайн.

Каркасные дома подходят как для постоянного проживания, так и для сезонного отдыха.
каркасный дом в стиле барнхаус,солнечная погода ,зеленая трав

Строительство каркасных домов под ключ

Компания «Каркас-Азов» выполняет полный комплекс работ по строительству каркасных домов в Крыму.
Основные этапы строительства


  • Проектирование каркасного дома
Разработка индивидуальных и типовых проектов каркасных домов с учетом бюджета и пожеланий клиента.

  • Подготовка участка и фундамента
Очистка территории, земляные работы, устройство свайного, ленточного или плитного фундамента.

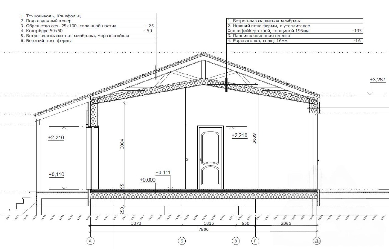
  • Монтаж каркаса дома
Сборка деревянного каркаса, монтаж стен, перекрытий и кровельной системы.

  • Утепление и обшивка
Комплексное утепление стен, пола и крыши, внешняя и внутренняя отделка дома.

  • Инженерные системы
Монтаж электрики, водоснабжения, канализации и отопления.

  • Чистовая отделка и сдача дома
Подготовка дома к проживанию, проверка всех систем и сдача объекта заказчику.
Дополнительные услуги



  • Кровельные работы;

  • Контаж сантехнических и электрических систем;

  • Подключение внешних коммуникаций;

  • Ландшафтный дизайн и благоустройство участка;

  • Внутренняя и внешняя отделка дома.

Если вы не знаете, с чего начать строительство — наши специалисты бесплатно проконсультируют вас.

Консультация
Каркасный дом в скандинавском стиле

О компании

«Каркас-Азов»

«Каркас-Азов» — строительная компания, специализирующаяся на возведении каркасных домов в Республике Крым. Мы работаем официально, используем качественные материалы и строго соблюдаем строительные нормы.
Наша команда — это опытные проектировщики и строители, которые отвечают за результат на каждом этапе работ.

Портфолио работ

Это малая часть выполненных нами работ

Почему выбирают «Каркас-Азов»


  • Строим каркасные дома в Крыму
  • Работаем по договору
  • Фиксированная цена
  • Соблюдаем сроки
  • Реальные отзывы клиентов
  • Гарантия на работы

Наша задача — построить надежный дом, а не просто «коробку».

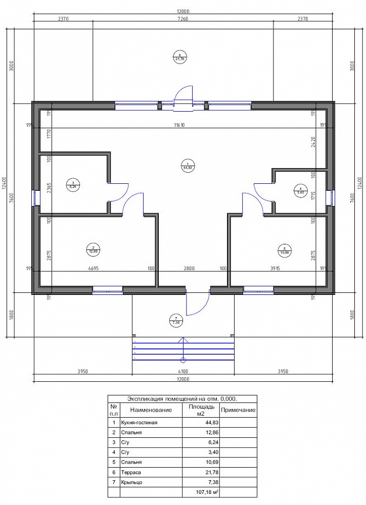
Проекты каркасных домов и цены

Мы предлагаем готовые проекты каркасных домов с разной площадью и планировкой.
Проект ДК-1

  • Размер: 5 х 6 м
  • Площадь: 37 м²
  • Этажность: 1 эт
Цена: 1 295 000 руб
Заказать
Проект ДК-2

  • Размер: 7.6 х 12 м
  • Площадь: 78 м²
  • Этажность: 1 эт

Цена: от 2 730 000 руб
Заказать
Проект ДК-3

  • Размер: 8.2 х 8.7 м
  • Площадь: 115 м²
  • Этажность: 2 эт
Цена: от 5 285 000 руб
Заказать
Проект ДК-1

  • Размер : 8 х 12. м
  • Площадь : 65 м²
  • Этажность : 1 эт

Цена: от 1 960 000 руб
Заказать
*Возможна доработка проектов под ваши требования.

От чего зависит стоимость каркасного дома

Цена строительства каркасного дома формируется индивидуально и зависит от:

Площади и этажности дома

Выбранных строительных материалов

Типа фундамента

Уровня отделки

Сложности проекта

Расположения участка в Крыму


*Чтобы узнать точную стоимость каркасного дома под ключ — оставьте заявку на расчет.
Оставить заявку

Если вы не находите нужной информации, напишите нам. Мы постараемся помочь вам как можно скорее.

Консультация
Отзывы клиентов
Наши клиенты ценят нас за честные цены, качество строительства и индивидуальный подход. Большинство заказчиков приходят по рекомендациям.
Я хотел бы поделиться своим отзывом о строительстве каркасного дома. Мы решили выбрать это тип строительства из-за его преимуществ перед традиционным кирпичным домом. Процесс строительства был приятным и гораздо быстрее, чем мы ожидали.Во-первых, нам понравилась стоимость строительства каркасного дома. Она оказалась гораздо более доступной по сравнению с кирпичным домом, и это был один из главных факторов, который помог нам принять решение. Кроме того, каркасный дом потребляет меньше энергии, что снижает расходы на отопление и кондиционирование.Второе преимущество каркасного дома - это отличная теплоизоляция. Мы оптимально подобрали материалы для стен и кровли, чтобы обеспечить максимальную энергоэффективность. В результате у нас всегда комфортная температура внутри дома и мы сэкономили на счетах за энергоресурсы.Мы также оценили гибкость в планировании и дизайне нашего каркасного дома. Возможность изменять размещение стен и окон позволила нам создать функциональное и удобное пространство для нашей семьи. Мы смогли воплотить в жизнь все наши идеи и предпочтения, не сталкиваясь с ограничениями, что было важно для нас.Наконец, я хотел бы отметить качество работы строителей. Они профессионально и точно выполнили свою работу, отвечая на все наши вопросы и удовлетворяя наши требования. Мы были очень довольны результатом и качеством строительства.В общем, строительство каркасного дома оказалось отличным вариантом для нашей семьи. Он экономичен, энергоэффективен, гибок в планировке и дизайне, и предоставил нам комфортное место для жизни. Мы с уверенностью рекомендуем этот тип строительства всем, кто хочет построить долговечный и уютный дом.
Строительство каркасного дома - это быстрый, качественный и эффективный способ создания своего жилья. Я очень доволен выбором данного вида строительства.Преимущества каркасного дома очевидны. Прежде всего, это скорость возведения. Каркас изготавливается заранее на специализированном предприятии, а затем привозится на участок и монтируется в течение нескольких недель. Это позволяет сэкономить время на строительстве и начать жить в новом доме гораздо быстрее, чем при традиционном кирпичном строительстве.Благодаря тому, что каркасный дом имеет легкий и прочный каркас, такая конструкция обладает высокой степенью устойчивости к сейсмическим и климатическим воздействиям. Он не требует такого количества фундамента, как кирпичный дом, что удобно и экономит средства.Еще одним важным достоинством каркасного дома является высокая энергоэффективность. Благодаря использованию современных утеплителей и технологий, каркасные дома отлично сохраняют тепло в зимнее время и охлаждение в жаркое лето. Это позволяет значительно сократить расходы на отопление и кондиционирование воздуха.Конечно, строительство каркасного дома имеет и свои недостатки. Некоторые считают, что такой дом может иметь более низкую звукоизоляцию, чем кирпичный дом. Однако современные технологии и материалы позволяют справиться с этой проблемой, если правильно спроектировать и построить дом.В целом, мой опыт строительства каркасного дома был положительным. Я остался доволен качеством и быстротой строительства, а также экономией на отоплении и кондиционировании. Рекомендую всем, кто хочет построить надежный и комфортный дом, обратить внимание на каркасные конструкции.
Очень понравилась грамотная организация строительства. Все работы были выполнены в срок, и я получил готовый дом точно в оговоренные сроки. Строители проявили высокий профессионализм и внимательность к моим пожеланиям. Они учли все мои требования и сделали все возможное, чтобы я был доволен результатом.
Я хотел бы поделиться своим впечатлением о строительстве каркасного дома, которое оказалось для меня настоящим открытием. С первых дней работы с командой специалистов стало понятно, что мы выбрали правильный путь в построении своего идеального жилья.Перед началом проекта, мы провели длительное исследование и выбрали надежную компанию, специализирующуюся на строительстве каркасных домов. Уже на этапе проектирования, инженеры предложили нам несколько оригинальных решений, которые идеально соответствовали нашим потребностям. Они учли все наши пожелания, совершенствуя дизайн и функциональность каждого помещения.И само строительство было по-настоящему увлекательным и продуктивным процессом. Мастера демонстрировали высокую профессиональную квалификацию и точность в каждой детали. Они справлялись с высококачественным монтажом каркаса, использовали только проверенные и экологически безопасные материалы. Каждый этап строительства был четко спланирован и точно выполнялся в срок, что дало нам дополнительное удовольствие и уверенность в их профессионализме.Каркасный дом, построенный нами, превзошел все наши ожидания. Просторные и функциональные комнаты, большие окна, позволяющие максимально использовать естественный свет, идеальная изоляция, устойчивость к внешним воздействиям - все это делает наше жилище максимально комфортным и современным.Отдельно хотелось бы отметить индивидуальный подход и профессиональное отношение к клиентам со стороны строительной компании. Они всегда были на связи, готовы отвечать на наши вопросы и предоставлять необходимую информацию. Сотрудничество с ними было настолько приятным, что мы всегда чувствовали, что нас ценят как клиентов.В итоге, мы получили не просто дом, а настоящий кусочек счастья и комфорта для нашей семьи. Советую каркасные дома всем, кто ценит качество и комфорт. Мы остались очень довольны своим выбором и смело рекомендуем эту надежную строительную компанию всем своим знакомым.

Контакты

icon - /uploads/s/t/f/y/tfy07qbh8lsu/img/full_8U2e3EDB.gif

Контактная информация

Обратная связь
icon - /uploads/s/t/f/y/tfy07qbh8lsu/img/full_4xUnxTPZ.gif

Социальные сети и мессенджеры

Свяжитесь с нами любым удобным способом — мы ответим на все вопросы и рассчитаем стоимость строительства.
icon - /uploads/s/t/f/y/tfy07qbh8lsu/img/full_cmS9Ug6c.gif

Информация о компании 

ИП Титов И.В

ИНН 911111079432 ОГРН ​319911200099652

© 2020-2026 "Каркас-Азов"
Все права защищены.
Сайт не является публичной офёртой. Использование информации с сайта разрешается только с разрешения владельца.